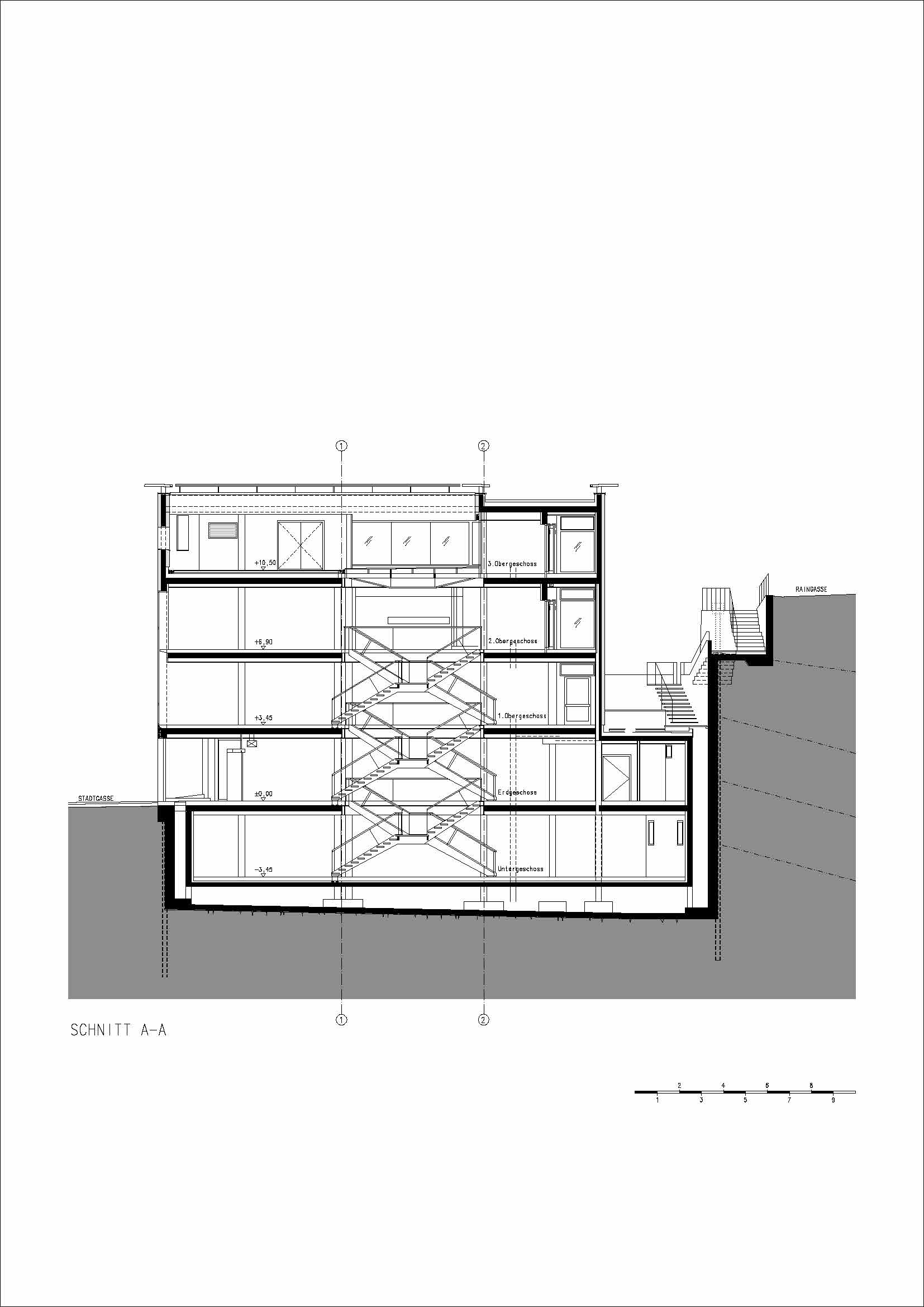
Am Anfang stand das aus allen Nähten platzende Athesia Buch- und Papierhaus in Bruneck, geplant von Othmar Barth. Da keine Erweiterung möglich war, bot der Erwerb des ehemaligen Sennigebäudes in der Stadtgasse 4 neue Perspektiven: Die Papierabteilung sollte dorthin übersiedeln, während das Stammhaus die Buchabteilung aufnehmen sollte. Nach weiteren Studien und dem Angebot des angrenzenden Rechhauses beschloss der Bauherr, dort ein neues Buch- und Medienhaus zu errichten und das alte Gebäude künftig als Papier-, Geschenk- und Spielehaus zu nutzen. Wegen unterschiedlicher Niveaus, feuchter Mauern und unzureichender Tragfähigkeit erwies sich eine Sanierung als ungeeignet. Nach Prüfung durch das Landesdenkmalamt wurde ein Neubau genehmigt. Trotz heftiger öffentlicher Kritik und monatelanger Polemik, die den Baubeginn verzögerte, blieb der Eröffnungstermin bestehen. Nach Abbruch der Altbauten und Errichtung einer technisch anspruchsvollen Baugrube begannen im April die Bauarbeiten. Sieben Monate intensiver Arbeit an der engen Stadtgasse führten schließlich zur fristgerechten Eröffnung am 16. November 2001.

Details

  • Lage:
    Bruneck
  • Volumen:
    5.389 m³
  • Auftraggeber:
    ATHESIA Buch GmbH
  • Planung:
    1998
  • Bauzeit:
    2001
Fotograf/In: Georg Hofer, Paul Ott, aichner_seidl ARCHITEKTEN
[ nebenbei ]