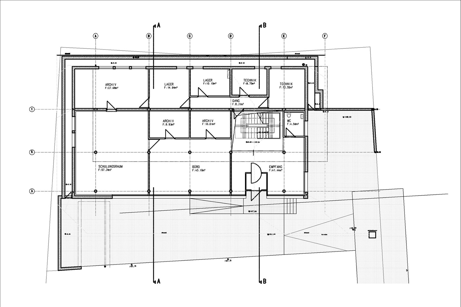
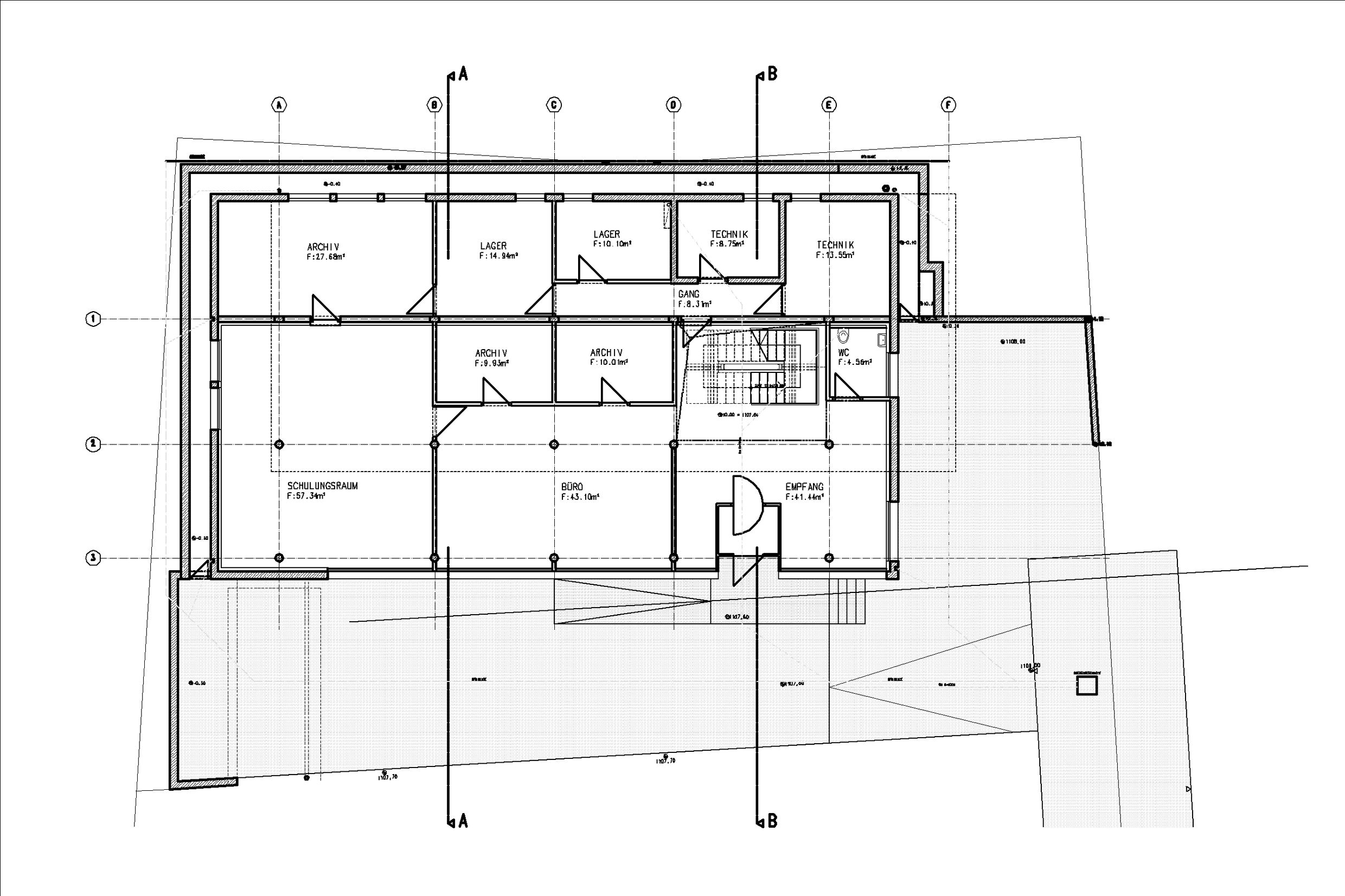
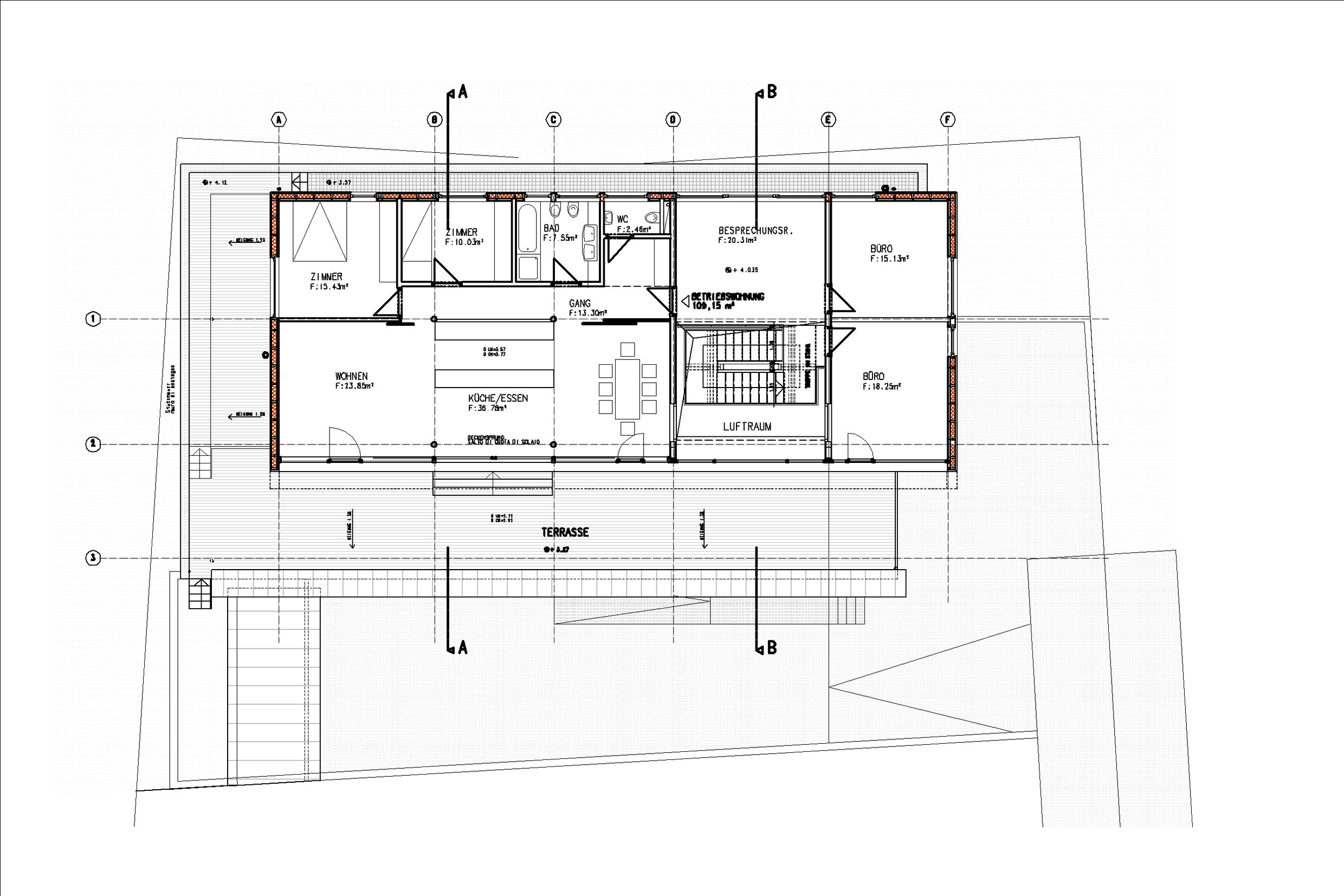
Das neue Betriebsgebäude der Softwarefirma SODECO in der Gewerbezone „Gran Pre“ in Montal bei St. Vigil auf rund 1000 m Höhe nutzt das steile, nach Süden ausgerichtete Hanggrundstück, indem das Erdgeschoss im Norden vollständig in den Hang eingebettet ist und sich nach Süden leicht über den Vorplatz erhebt. Die Architektur orientiert sich an der benachbarten Hofstelle und arbeitet mit Sichtbeton und unbehandeltem Lärchenholz. Das Gebäude gliedert sich in zwei übereinanderliegende Baukörper: ein massives Erdgeschoss aus Sichtbeton mit Arbeits-, Schulungs- und Büroräumen sowie Archiv und ein leicht verschobenes, auskragendes Obergeschoss in Holzbauweise mit zwei Büros und der Eigentümerwohnung samt großer Südsterrasse. Der Untergeschossbereich wurde mit doppelwandiger Konstruktion gegen Feuchtigkeit gesichert. Ein Carport ergänzt den Vorplatz. Als Niedrigenergiehaus verfügt das Gebäude über hochwertige Dämmung, Pelletsheizung, kontrollierte Lüftung, Sonnenkollektoren und Photovoltaik, der Jahresenergiebedarf liegt unter 45 kWh/m².

Details

  • Lage:
    Enneberg
  • Volumen:
    1.736 m³
  • Auftraggeber:
    Sodeco
  • Planung:
    1998/99
  • Bauzeit:
    2000/02
Fotograf/In: Hermann Maria Gasser, aichner_seidl ARCHITEKTEN
[ nebenbei ]