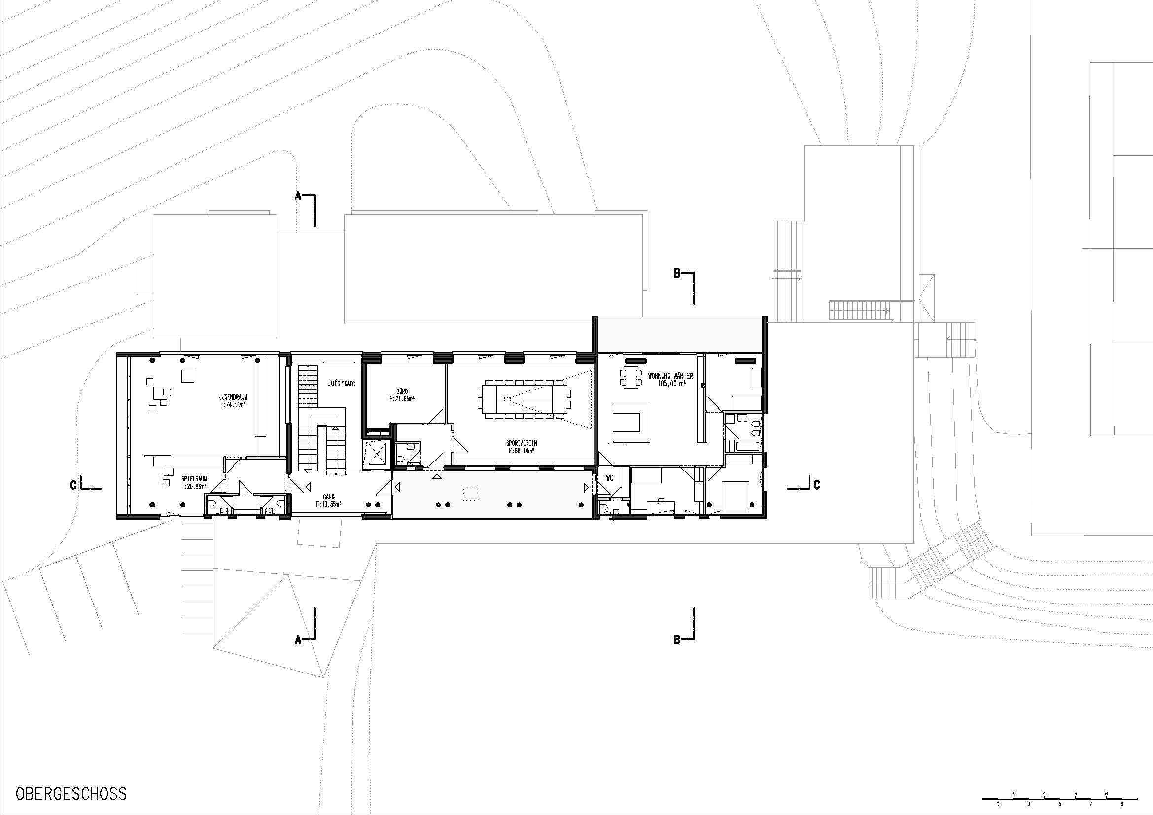
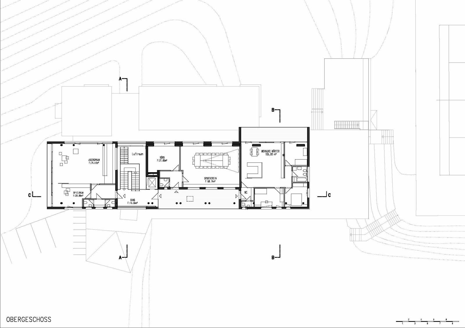
Das Sportzentrum orientiert sich an der leichten Geländekante südöstlich des Fußballplatzes und öffnet sich mit klarer Ausrichtung ins Tal. Vom Parkplatz erschließt sich das quer zum Hang gesetzte Gebäude, dessen Sockelgeschoss teilweise im Gelände liegt und tageslichtabhängige Nutzungen aufnimmt. Darüber liegen Bar und Restaurant mit drei Terrassen sowie der Haupteingang, der die vertikale Erschließung aller Ebenen bildet. Im Untergeschoss sind Kegelbahnen, Schießstände, Umkleiden, Sanitäranlagen und der Fitnessraum angeordnet, im Erdgeschoss Gastronomie mit direktem Blick auf Fußball- und Tennisplätze. Das Obergeschoss beherbergt Jugendtreff, Vereinsräume und die nach Süden orientierte Hausmeisterwohnung. Die drei Terrassen schaffen differenzierte Aufenthaltsbereiche mit Ausblicken auf die Landschaft. Einige geplante Bauteile wie das auskragende Dach oder die Pergola wurden aus Kostengründen nicht realisiert, dennoch vermittelt das Gebäude durch seine klare Gliederung, die transparente Erschließung und die gezielte Terrassierung ein offenes, funktionales Raumgefühl.

Details

  • Lage:
    Aldein
  • Volumen:
    6.258 m³
  • Auftraggeber:
    Gemeinde Aldein
  • Planung:
    2003/04
  • Bauzeit:
    2005/06
Fotograf/In: Georg Hofer, aichner_seidl ARCHITEKTEN
[ nebenbei ]