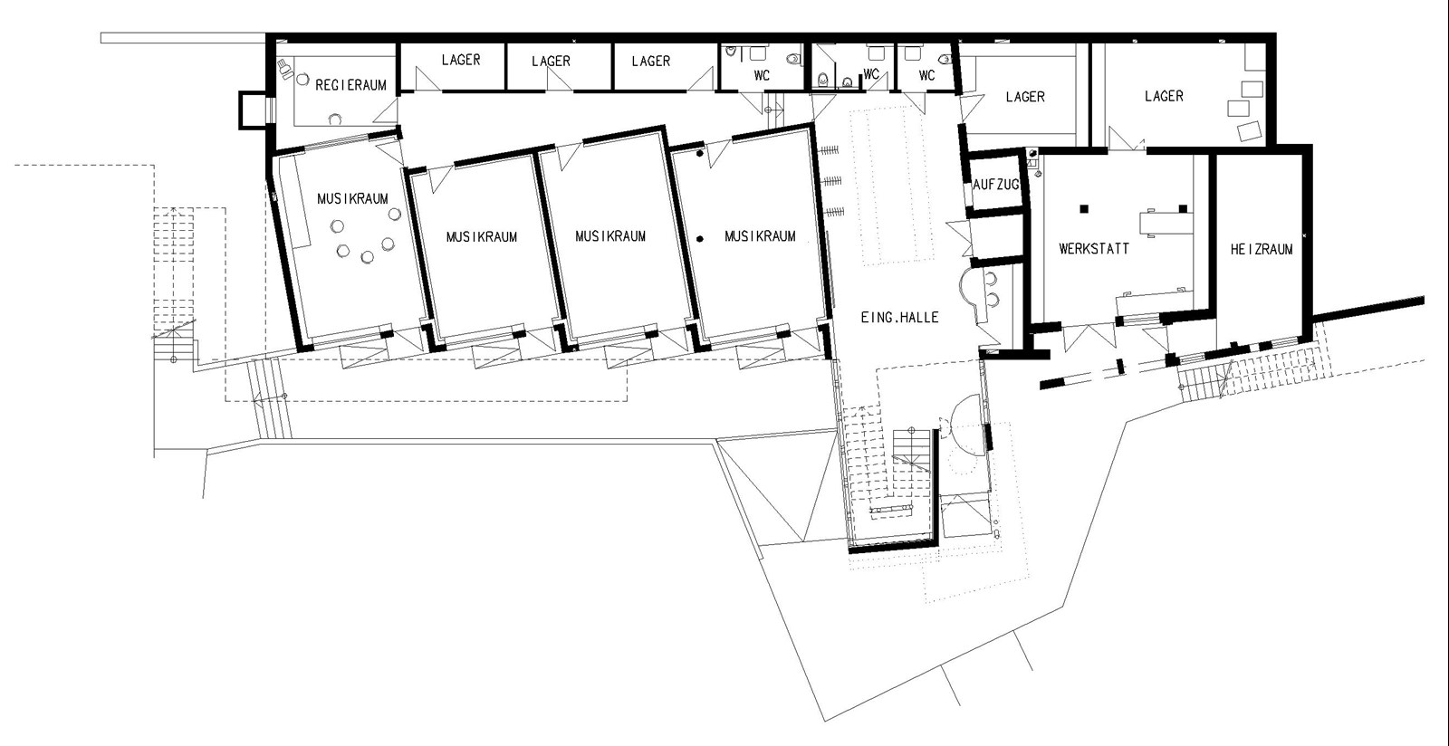
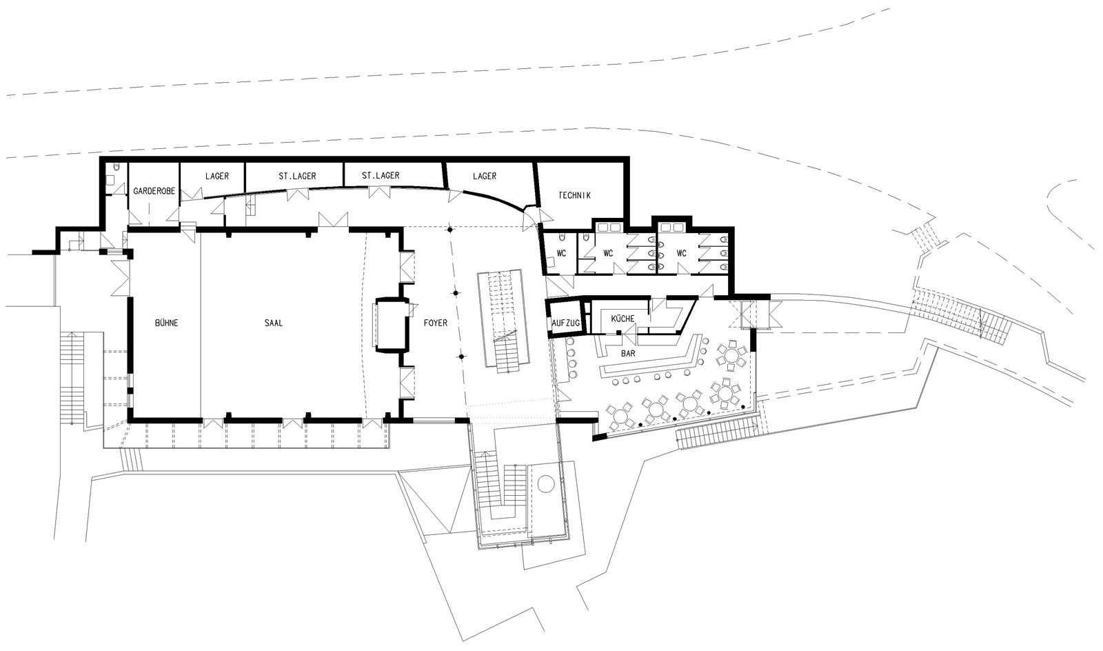
Das Jugendzentrum UFO liegt in der Schulzone von Bruneck am Waldheimerweg, nahe der Altstadt. Mit dem Groove Café ist es Treffpunkt für Jugendliche und beliebter Aufenthaltsort für Schüler. Der Bau fügt sich in den Hang des Kühbergls ein und nutzt das abfallende Gelände mit Terrassen als amphitheaterartigen Außenbereich. Grundlage der Planung war ein von Jugendarbeitern entwickeltes Raumprogramm, das funktionale Abläufe und Begegnungen fördert. Ziel war ein experimentelles, jugendliches Gebäude ohne Schwellenangst – ein Labor für Ideen und Entwicklungen. Alle Bereiche sind eigenständig zugänglich und mit den Außenflächen verbunden, zentrales Element ist das UFO-Café als Ort des Austauschs. Das Haus gliedert sich in vier Ebenen, verbunden durch zwei Eingänge und einen verglasten Erschließungskörper mit Treppen und Aufzug. Unten liegen Proberäume, Tonstudio und Werkstatt, im Hauptgeschoss Saal, Café, Terrasse und Freiluftbühne, darüber Büros und Seminarräume, ganz oben ruhige Zonen mit Bibliothek, Fotostudio und Gästezimmern. Zum zehnjährigen Bestehen wurden Bar und Fassade neu gestaltet.

Details

  • Lage:
    Bruneck
  • Volumen:
    6.685 m³
  • Auftraggeber:
    Stadtgemeinde Bruneck
  • Planung:
    1993
  • Bauzeit:
    1997
Fotograf/In: Hermann Maria Gasser, Bruneck aichner_seidl ARCHITEKTEN
[ nebenbei ]