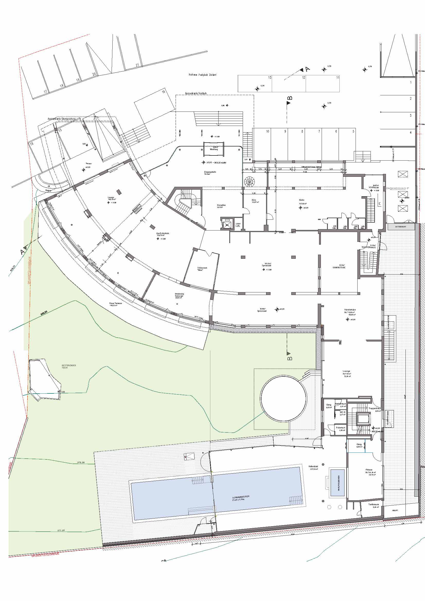
Das Hotel Petrus stellte aufgrund seiner Lage inmitten einer ländlichen Umgebung eine besondere architektonische Herausforderung dar. Nach Abbruch, Wiederaufbau und einer großzügigen Erweiterung, bei der die Grünflächen bewusst vergrößert wurden, galt es, ein harmonisches und einheitliches Erscheinungsbild zu schaffen. Wie viele Hotels im Alpenraum war auch dieses Gebäude über mehrere Bauphasen hinweg gewachsen und musste nun funktional und gestalterisch neu zusammengeführt werden.

Im Erdgeschoss schließt der neue Baukörper L-förmig an den Bestand an, während das Untergeschoss durch einen großzügigen Innenhof als vollwertiger Wellnessbereich nutzbar wird. Die Obergeschosse mit den Suiten fügen sich linear an den Bestand an und schaffen so eine klare, elegante Gliederung des Gebäudes. Das Zusammenspiel von Bestandsgebäude, Erweiterung und Umgebung vermittelt Ruhe, Ordnung und Großzügigkeit – die Architektur öffnet sich der Landschaft, ohne ihre stimmige, kompakte Form zu verlieren.

Details

  • Lage:
    Reischach, Bruneck
  • Volumen:
    24.425 m³
  • Auftraggeber:
    Hans Aichner & CO. KG.
  • Planung:
    1994, 2003, 2007, 2013, 2017, 2019
  • Bauzeit:
    1995, 2004, 2008, 2015, 2018, 2020
Fotograf/In: Florian Andergassen, aichner_seidl ARCHITEKTEN
[ nebenbei ]