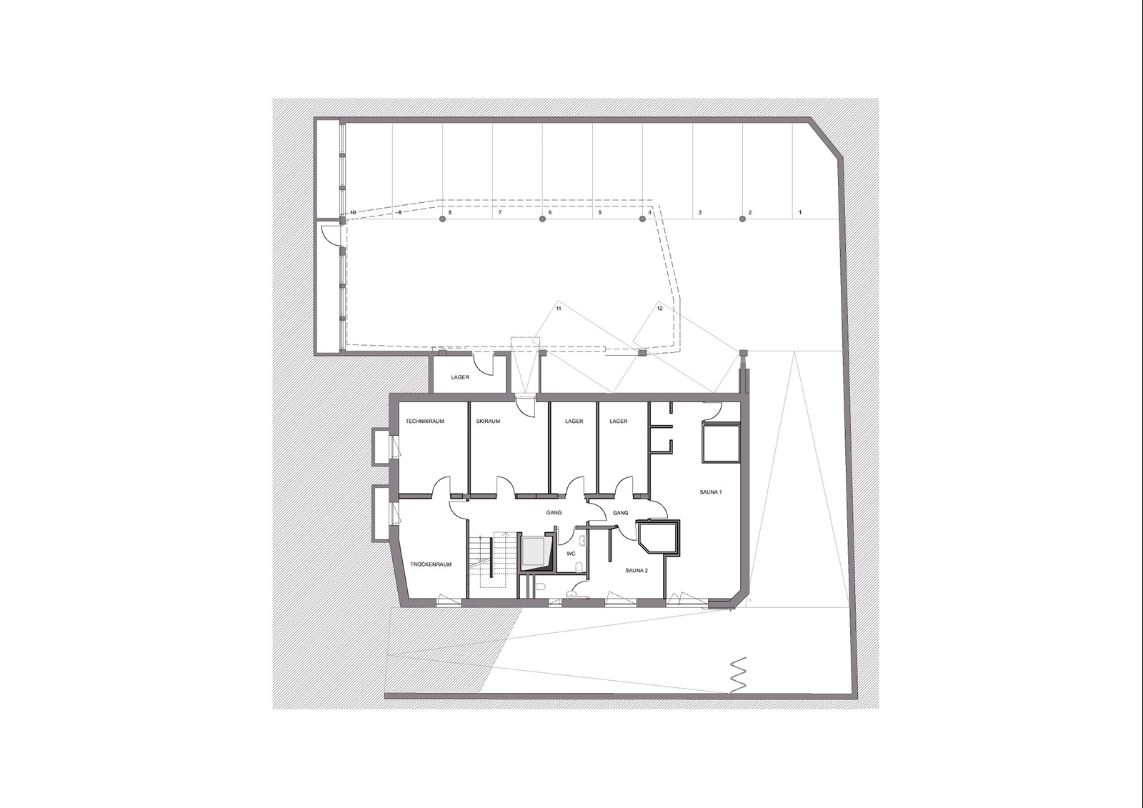
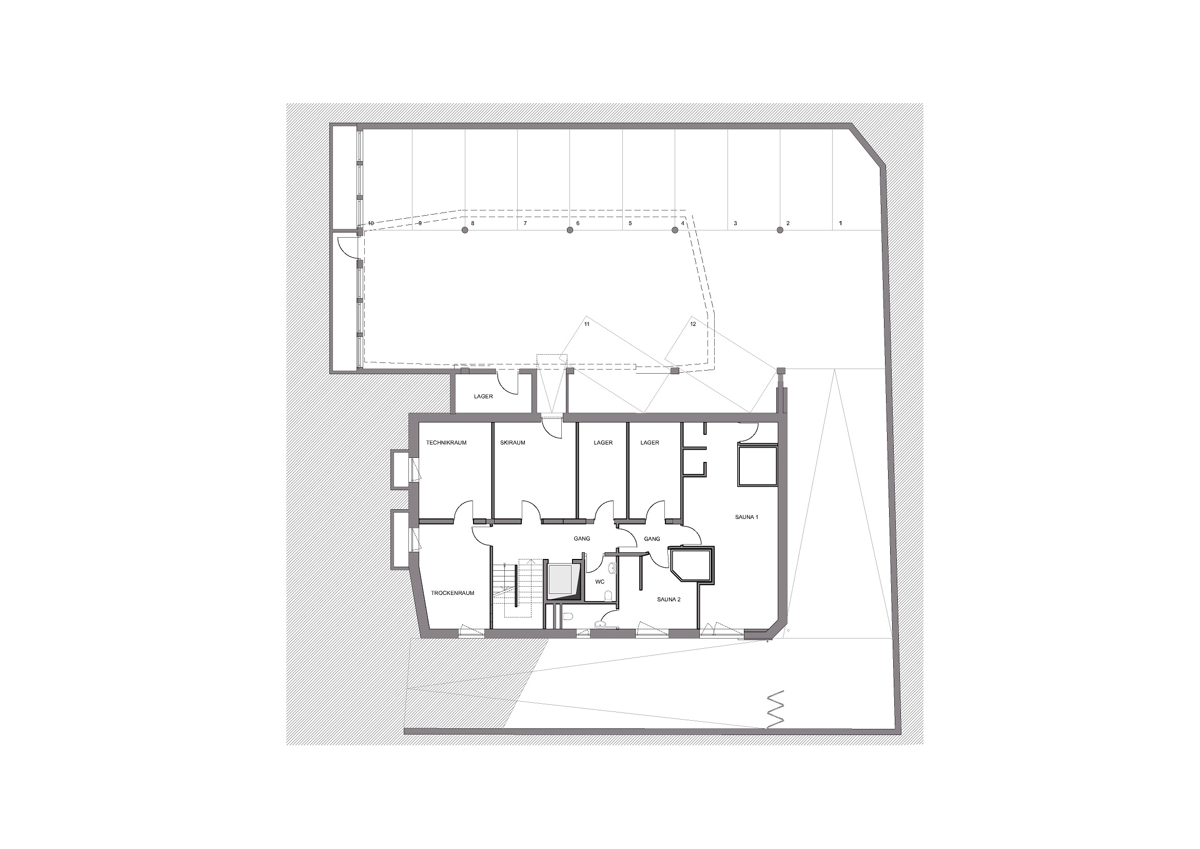
Die Pension „Aichner“ aus den 1960er-Jahren wurde abgerissen und durch eine moderne Residence mit elf Ferienwohnungen und Wohnungen der Besitzerfamilie ersetzt. Das Gebäude fügt sich harmonisch in die Umgebung ein und verbindet zeitgemäße Architektur mit familiärer Nutzung. Ein ursprünglich geplanter südlicher Anbau als Bar und Restaurant wurde verworfen; heute beherbergt er die Wohnung der nächsten Generation und bildet einen eigenständigen Teil des Ensembles. Im Erdgeschoss liegen Rezeption und Aufenthaltsbereich, daneben die Eigentümerwohnungen. Das Untergeschoss bietet Wellnessbereich, Skidepot und Nebenräume. Die elf Obergeschosswohnungen sind lichtdurchflutet und funktional gestaltet und bieten Komfort für Gäste jeden Alters. Großzügige Fenster, Balkone und Terrassen eröffnen weite Ausblicke auf die Berge und lassen Bewohner und Gäste die Landschaft unmittelbar erleben. So vereint die Residence moderne Wohnqualität und flexible Nutzung.

Details

  • Lage:
    Reischach, Bruneck
  • Volumen:
    4.669 m³
  • Auftraggeber:
    privat
  • Planung:
    2008 und 2011
  • Bauzeit:
    2008 und 2012/13
Fotograf/In: aichner_seidl ARCHITEKTEN
[ nebenbei ]