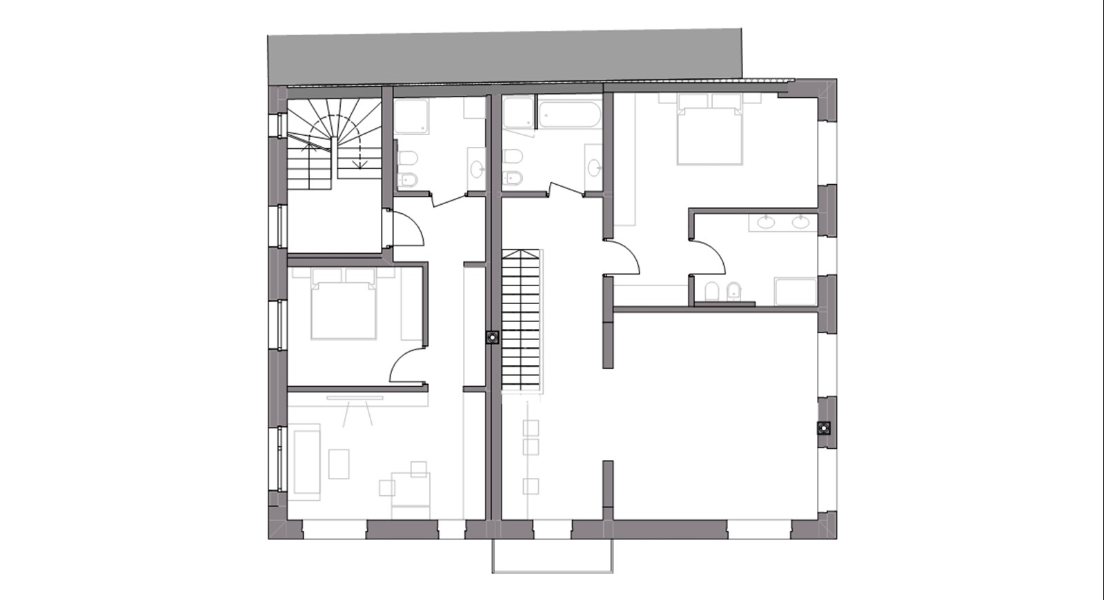
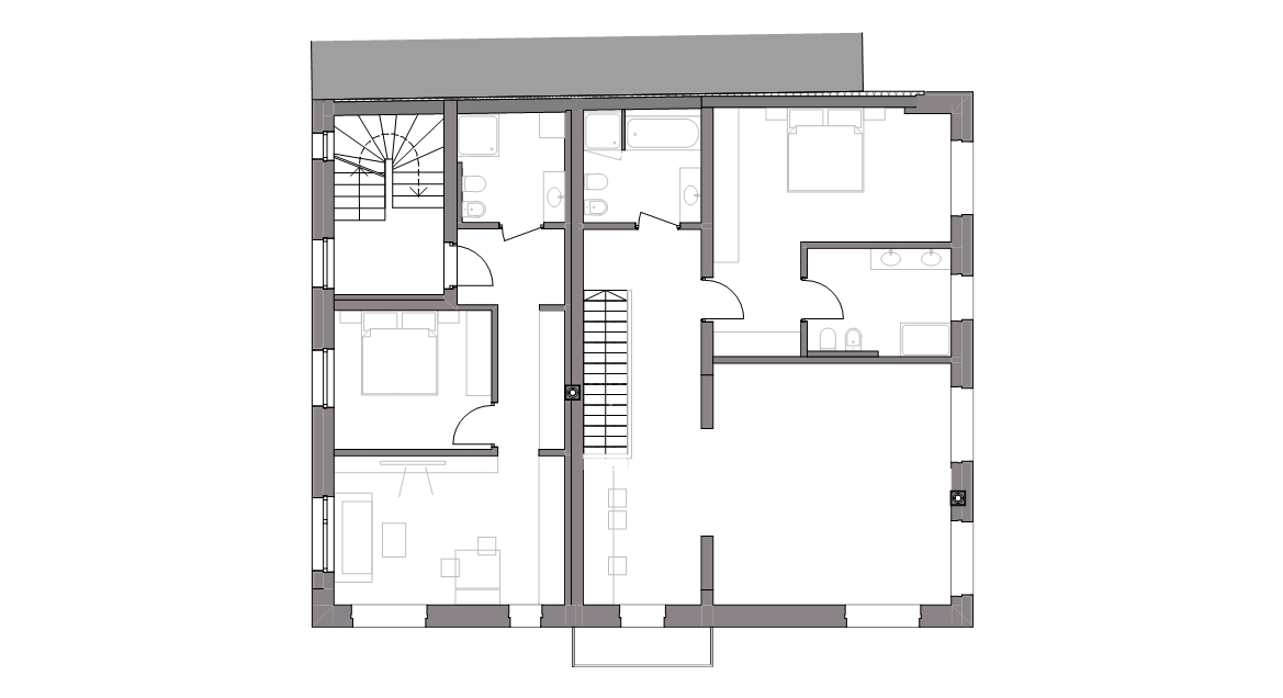
Der Tafernerhof in Percha wurde zwischen 2008 und 2018 umfassend umgebaut und erweitert. Der alte Stadel und das Gerätehaus wichen Neubauten, die Kontur und Giebel des Originals aufnehmen und fünf Mietwohnungen sowie eine neue landwirtschaftliche Garage beherbergen. Die Fassaden kombinieren verputztes Mauerwerk, Sichtbeton und sägeraues Lärchenholz, ergänzt durch ein Farbkonzept von Albert Mellauner. Das alte Bauernhaus wurde abgetragen und in gleicher Kontur neu errichtet: Hauptwohnung, Einliegerwohnung und Dachgeschosswohnung der nächsten Generation verbinden heute traditionelle Elemente wie die restaurierte Stube von 1907, den Kuntner-Ofen, Balkongeländer und Bretterböden mit zeitgemäßer Wohnqualität. Die Neustrukturierung bewahrt den dörflichen Charme, sichert den Hof wirtschaftlich und integriert Alt und Neu harmonisch in den bestehenden Kontext.

Details

  • LAGE:
    Percha
  • AUFTRAGGEBER:
    privat
  • PLANUNG:
    2007 und 2016
  • BAUZEIT:
    2008/10 und 2016/18
Fotograf/In: Oliver Jaist, Jürgen Eheim
[ nebenbei ]