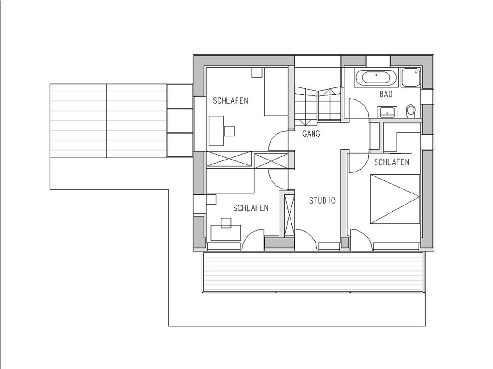
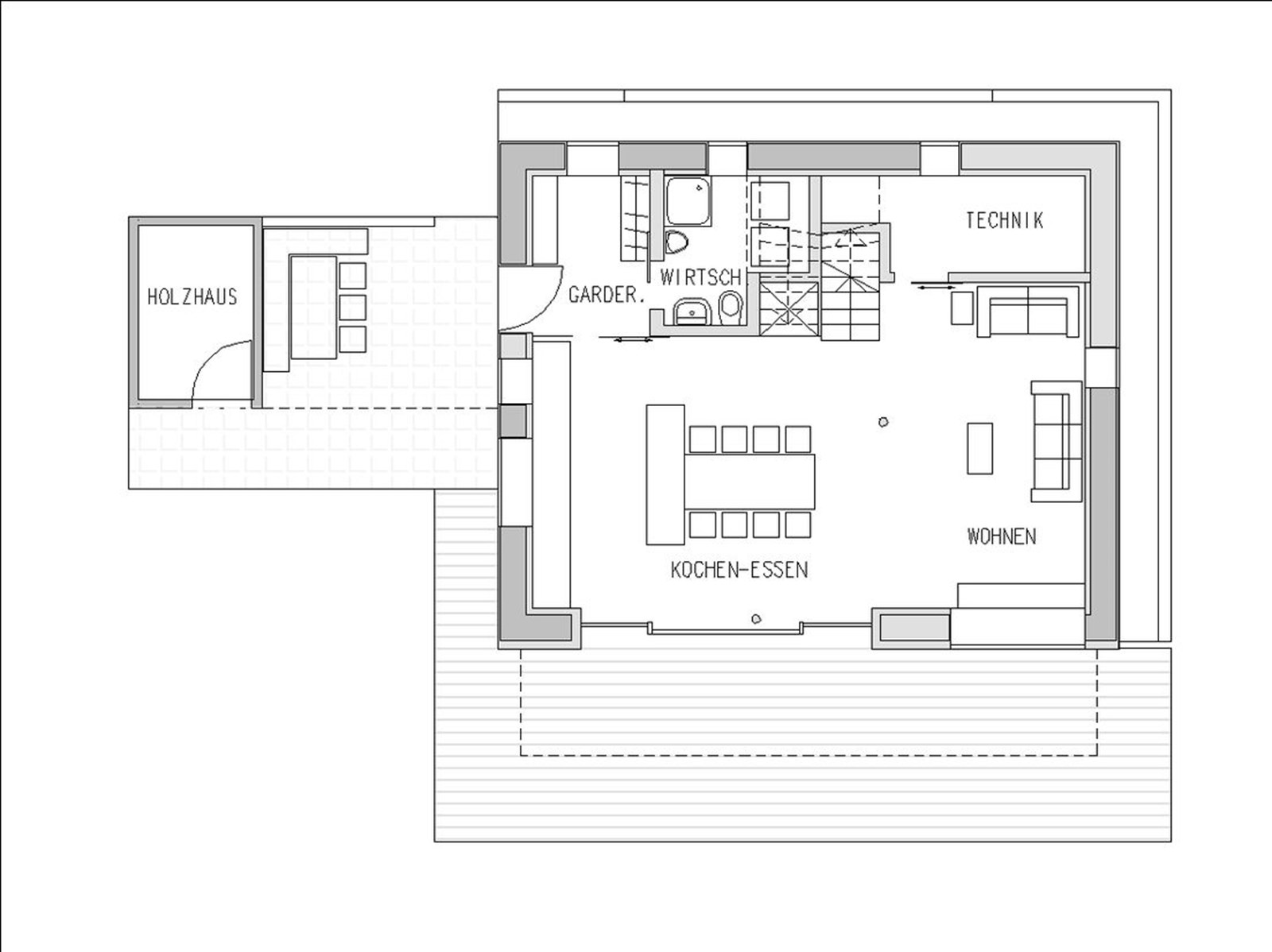
Auf 1200 m am Sonnenhang über dem Pustertal errichtete eine junge Familie mit zwei Kindern ein kleines, kostengünstiges und energieeffizientes Holzhaus, das ihnen Unabhängigkeit von steigenden Ölpreisen und Energiepreisen bietet. Das leicht nach Süden abfallende Grundstück öffnet sich mit freier Sicht nach Süden und Gebirgsblick nach Norden. Als Passivhaus konzipiert, kommt das Gebäude ohne klassische Heizsysteme aus. Entscheidend waren präzise Planung, sorgfältige Umsetzung und eine luftdichte, wärmebrückenfreie Hülle. Die Arbeiten begannen im Oktober, der Einzug erfolgte im April. Dank kompakter Wärmepumpe und kontrollierter Lüftung erreicht das Haus einen Energieverbrauch von nur 8 kWh/m²a, etwa ein Liter Heizöl pro Quadratmeter, insgesamt 118 Liter pro Jahr für Heizung und Warmwasser. So entstand ein komfortables, wirtschaftliches und nachhaltiges Zuhause, das der Familie langfristig Sicherheit und Lebensqualität bietet.

Details

  • LAGE:
    Terenten
  • AUFTRAGGEBER:
    privat
  • PLANUNG:
    2004
  • BAUZEIT:
    2004/05
Fotograf/In: Georg Hofer, Brixen
[ nebenbei ]