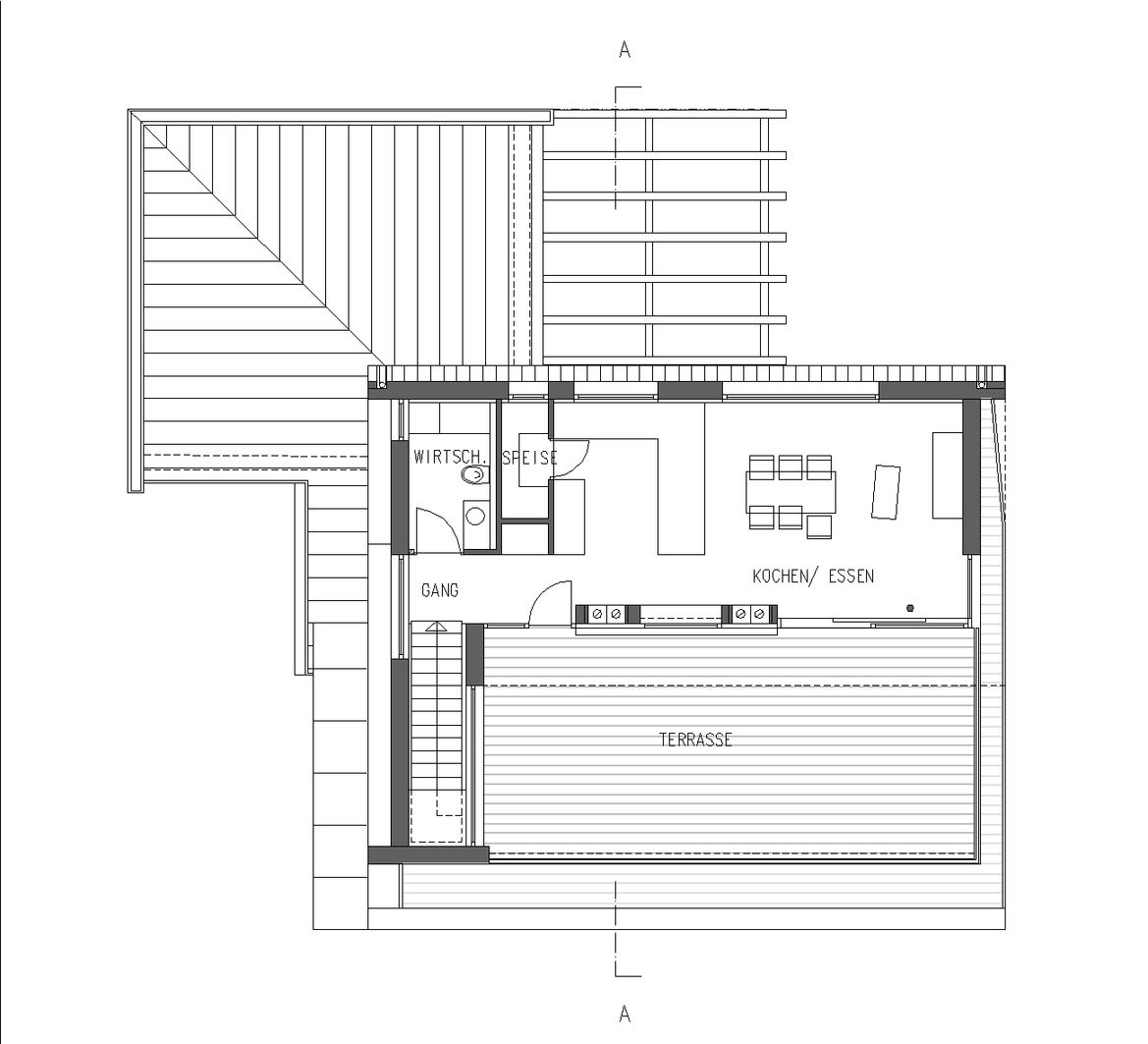
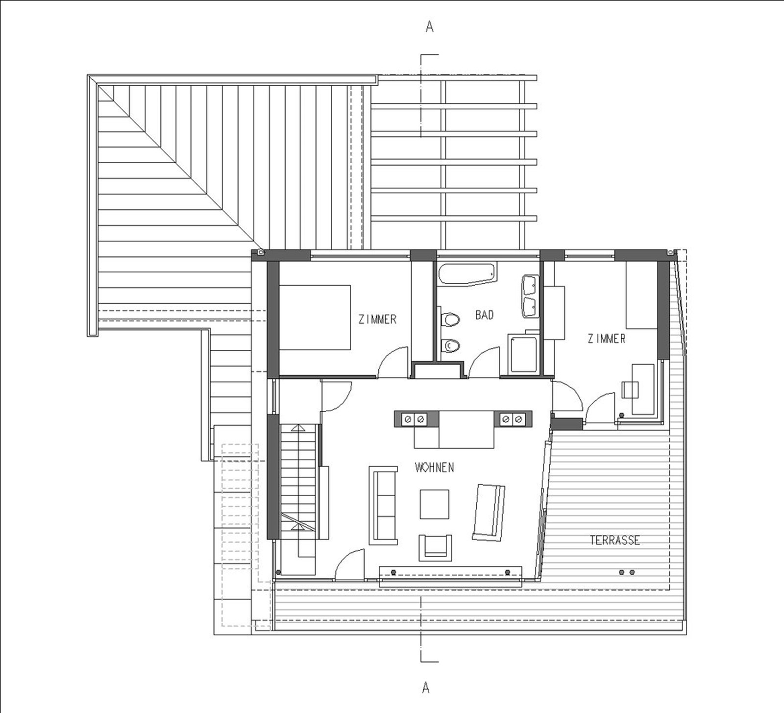
Das Einfamilienhaus aus den 1980er Jahren wurde aufgestockt und um eine eigenständig erschlossene Wohneinheit für den Sohn erweitert. Eine gefaltete Dachfläche aus vorbewittertem Titanzink umhüllt den Eternit-verkleideten Baukörper mit seinen großzügigen Fenstern, ein umlaufender anthrazitfarbener Streifen markiert die Schnittlinie. Großzügige Terrassen im zweiten und dritten Obergeschoss ersetzen den Garten und bieten Ausblicke nach Süden zum Kronplatz und nach Norden zu den Gipfeln des Zillertaler Hauptkammes und der Rieserfernergruppe, während große Glasschiebeelemente fließende Übergänge zwischen Innen- und Außenräumen schaffen. Der Zugang erfolgt über das erste Obergeschoss des Bestandsgebäudes, von dort führt eine Treppe ins Wohn- und Schlafgeschoss mit Wohnzimmer, Südwestterrasse, zwei Schlafzimmern, Bad und gemauertem Ofen als Zentrum. Eine Stahl-Holz-Treppe erschließt das Dachgeschoss mit Wohn-Essbereich, Küche, Dachterrasse und Nebenräumen, dem Lebensmittelpunkt der neuen Einheit mit Weitsicht über Bruneck.

Details

  • LAGE:
    Bruneck
  • AUFTRAGGEBER:
    privat
  • PLANUNG:
    2003/04
  • BAUZEIT:
    2004
Fotograf/In: Hermann Maria Gasser
[ nebenbei ]