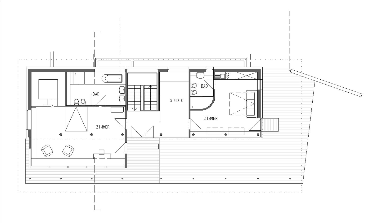
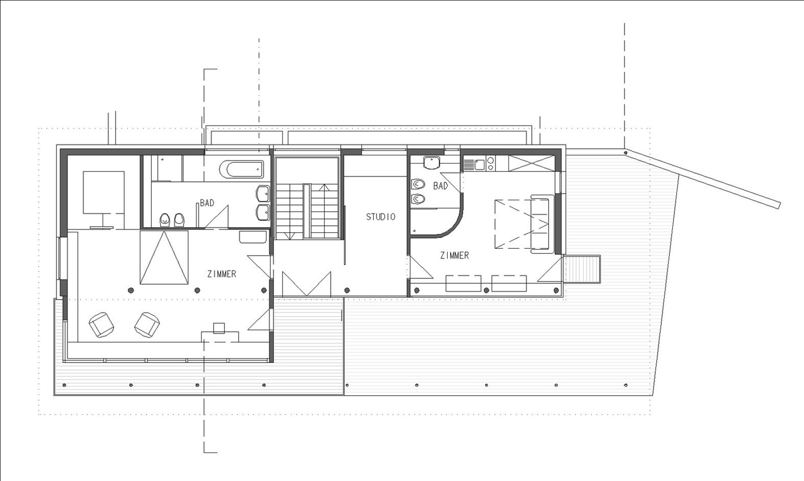
Das Haus Niederkofler liegt an der steil ansteigenden Ostseite der „Pranger Siedlung“. Die Bauherren wünschten ein repräsentatives, massiv gebautes Niedrigenergiehaus mit Natursteinakzenten. Der Baukörper orientiert sich nord-süd, öffnet sich großzügig nach Süden zu Garten und Terrassen, Keller- und Lagerräume sind ebenerdig in den Hang gebaut, der Carport verschwindet im Gelände. Der Baukörper gliedert sich in Hauptbau, Küchenquader, Obergeschoss-Erweiterung mit Kupferverkleidung und ein schwebendes Holzdach über den Terrassen. Innen verbindet ein zentraler Gang die Räume, offene Wohnbereiche fließen zum Wintergarten und Garten, im Obergeschoss liegen Schlafzimmer, Bäder und ein Studio, teilweise abtrennbar. Hochwertige Materialien wie Holz, Naturstein und Beton, große Fensterflächen, kontrollierte Lüftung und Fußbodenheizung sorgen für Komfort und modernes Wohnen.

Details

  • LAGE:
    Ehrenburg
  • AUFTRAGGEBER:
    privat
  • PLANUNG:
    2000/01
  • BAUZEIT:
    2001/02
Fotograf/In: Paul Ott, Jürgen Eheim
[ nebenbei ]